ロケーション検索

燕三条トライク (旧外山虎松商店)

クリックすると写真の全体をご覧いただけます。

  • 道路からの建物外観

  • 建物上部外観(右下)と三条の町並み

  • 1階メインスペース(旧店舗)

  • 2階廊下と和室続き間

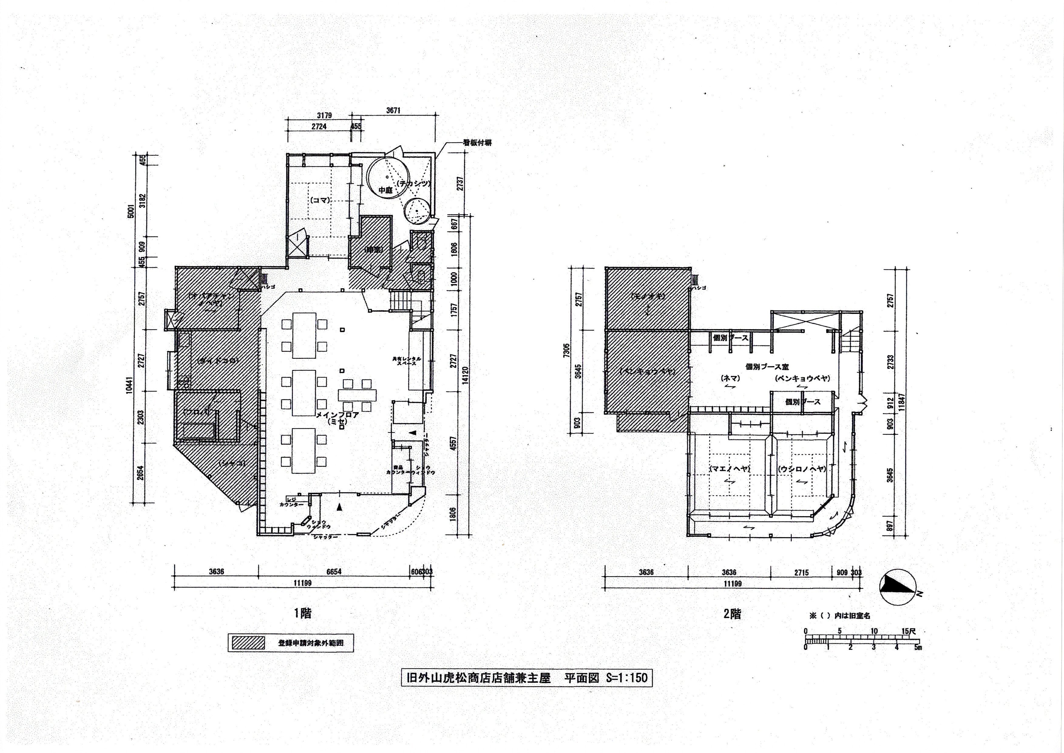
  • 参考平面図

ロケーション情報

国登録有形文化財
時計宝飾店兼住宅をリノベーションしたシェアスペース&ライブラリー
メインスペースには壁一面の備え付けられた本棚と開放的なコワーキング、イベントスペース
趣のある和室、箱庭、台所、浴室、車庫、地下に防空壕
2階に和室の続間

昭和初期からの歴史を感じられる建物

  • 名称
    燕三条トライク (旧外山虎松商店)
  • カテゴリー
    • 市街地
    • 商店街・繁華街
    • 古民家・住宅
    • 商業施設・店舗
  • エリア
    三条市三条地区
  • 住所
    神明町3−7
  • 連絡先
  • Webサイト
  • 駐車場
    有り
  • 撮影日時
    0000年01月01日 00時頃
  • 撮影時の天候